Corporate information
2024.06.12(Wednesday)
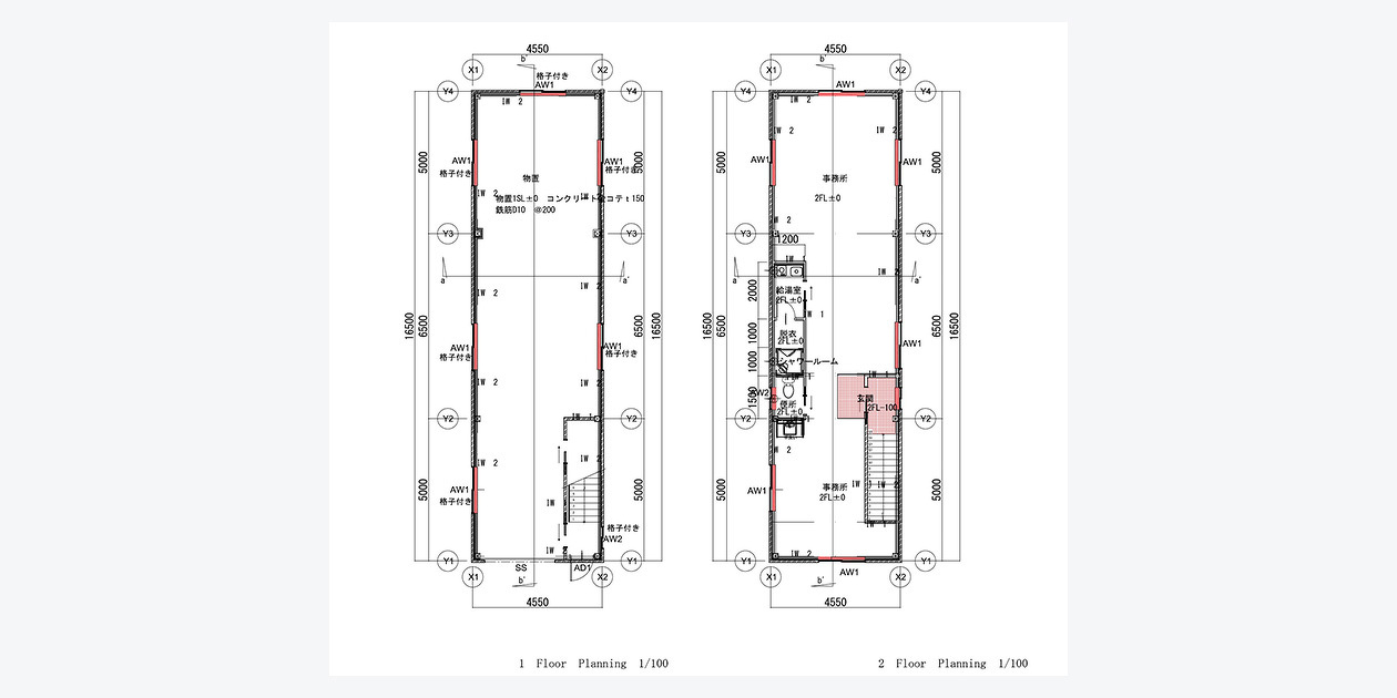
建物種別: 倉庫、事務所 築年数: 2024年 構造: 鉄骨造 階数: 2階 延床面積: 150.15m² 施工場所: 愛知県春日井市