Corporate information
2024.01.01(Monday)
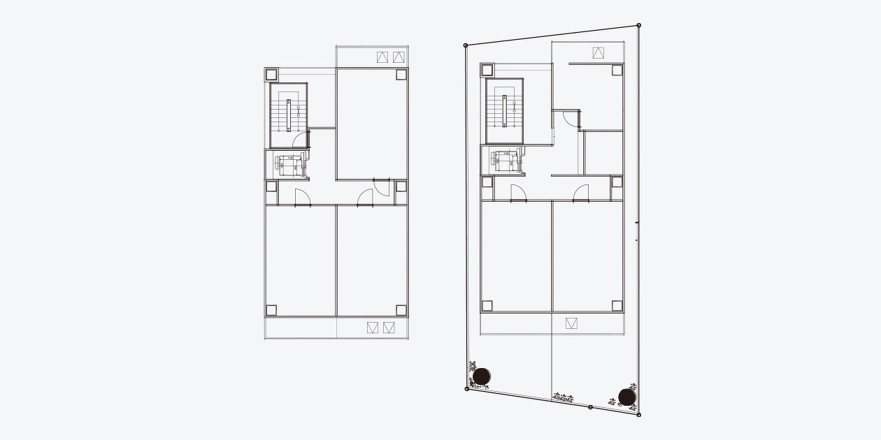
建物種別::分譲マンション 築年数:2024年予定 構造:鉄骨造 階数:13階 延床面積:1061.64m² 施工場所:名古屋市東区泉三丁目